新築戸建て 熊本市北区麻生田4丁目 4LDK 3,650万円|熊本市南区・東区の不動産情報は、グッドホーム熊本へ

  1. HOME
  2. 町名から物件検索
  3. 新築戸建て 熊本市北区麻生田4丁目 4LDK 3,650万円
前のページに戻る前のページに戻る

物件検索

お気に入りリストに追加

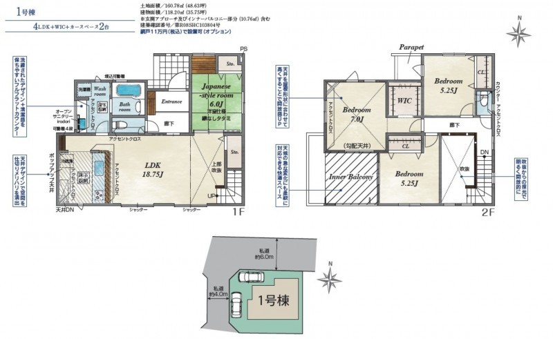
熊本市北区麻生田4丁目1号棟 新築戸建て 3,650万円   

この物件は18人の方が見ています

スーパーミカエル新地店まで徒歩約8分♪
セブンイレブン熊本新地団地前店まで徒歩約5分♪

※画像をクリックすると拡大表示します


新築戸建て(17206)

所在地 熊本市北区麻生田4丁目 1号棟 交通 バス停楡木小入口 まで 徒歩2分
敷地面積 160.78㎡(48.63坪) 建物面積 118.20㎡ (35.75坪)
価格 3,650万円 築年月 2026年(令和8)7月
建ぺい率ヘルプ 50% 容積率ヘルプ 150%
土地権利ヘルプ 所有権 地目ヘルプ 宅地
小学校区 麻生田 ( 900m ) 中学校区 清水 ( 2100m )
私道負担 あり 現況
引渡し時期 相談 間取り 4LDK
建築構造 木造 上水道 公共
下水道 公共 ガス
駐車場台数 2台 用途地域ヘルプ 第一種中高層住居専用地域
都市計画ヘルプ 市街化区域
設備 システムキッチン、カウンターキッチン、IHクッキングヒーター、オール電化、シャンプードレッサー、洗浄便座、浴室乾燥機、モニタ付インターホン、駐車場2台分、トイレ2箇所
備考 長期優良住宅、住宅性能表示
取引態様 仲介

class=va-t をクリックすると用語集がご覧いただけます。

【更新年月日】2026年04月11日
【次回更新日】2026年05月11日


この物件について問い合わせする

周辺地図を確認する
大きな地図で見る

この物件について問い合わせする

特記事項 ※不動産物件情報は最新のデータの掲載を心がけていますが、データの書き換えの都合上、売却済みなどの場合はご容赦ください。
※掲載されている不動産物件データが現況と異なる場合は現況を優先します。

グッドハート株式会社

〒862-0942
熊本市東区江津1丁目16-17

0120-927-172

電話受付 9:00 〜 17:30
定休日 水曜日・祝日

  • 会社概要
  • スタッフ紹介
  • お問い合せ

熊本市南区、東区の不動産売買はグッドホーム熊本の不動産情報サイトにおまかせ下さい!

中古住宅や中古マンションなどの中古売買物件や土地物件探しまで熊本市南区、東区の不動産物件探しをお手伝いいたします。
グッドホーム熊本のホームページでは、中古住宅、中古マンション、土地などの物件種目別や、不動産物件を探す熊本市南区、東区のエリア別、資金計画に合せた物件価格別、部屋数など考えた間取り別、お子さまがいらっしゃるお客様の場合は小学校や中学校などの学校区別で物件の検索をすることができます。
その他にも希望条件やお悩みなどがあれば、直接ご相談ください。
熊本市南区、東区の不動産物件の購入だけではなく新築や中古物件のリフォーム、リノベーションも一緒にご相談ください。

また所有している不動産物件のご売却や任意売却など、皆様の大切な財産の売却に関するご相談も承ります。
売却をお考えの不動産物件の査定も無料で行います。
グッドホーム熊本はお客さまの不動産売買を全力でサポートいたします!